0
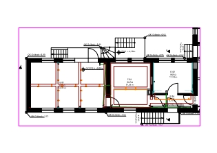
Kabeltrassen:
Elektroverkabelung:
Klemmenplan& Übersicht der Verteilungen
Kommissionsware_CE_Electronics für Unterverteilungen:
Grundbedarf:
| Unterverteilung | Steckdosen | Taster | Beleuchtung | Herdanschluss | Unterverteilung | Aussenbeleuchtung | FI 16A 3P | FI 32A 3P | Automat Herd | Automat 16A 1P Steckdosen | Autopmat 10A 1P Licht | FI/LS 16A 1P | FI/LS 16A 3P |
| devtal | 6 | 5 | 4 | 1 = 4*7 | ? | ? | |||||||
| Allgemein | 17 | 11 | 6 | 1 | 1 = bestehender Zählerschrank | 14 im Reihe ? | ? | ? | ? | ||||
| Werkstatt (nur Maschienen- und Geräte-Versorgung | 1= 4*7 | ||||||||||||
| Keller | 11 | 10 | 11 | wird auf Allgemein gelegt |
Hauptverteilung/Unterverteilungen:
Diese beiden Listen sind extrahiert aus der Basisbedarf_Strom_GPA Liste. D.h. Die Komponenten von Hager und die Komponenten von Phoenix. Das Mengengerüst und die Komponenten müssten nochmal geprüft und angepasst werden.
Pos. | Projektname | Best-Nr. | Menge | Einheit | Bezeichnung | VPE | PrGr | Preis (EUR) | EUR/ Menge | Gesamtpreis (EUR) |
1 | Neues Teilprojekt | KDN451D | 1 | St. | Phasenschiene 3 polig+N mit Gabelanschluss 16mm² 80A 12 Module | 25 St. | H601 | 20 | EUR / St. | 20,00 EUR |
2 | Neues Teilprojekt | FWB72N | 1 | St. | Feldvert.AP, univers, IP44, SKII, 120PLE, 2x7Reihen, HS Abstand150mm, 1100x550x161mm | 1 St. | H140 | 795,6 | EUR / St. | 795,60 EUR |
3 | Neues Teilprojekt | KDN363F | 1 | St. | Phasenschiene 3 polig mit Gabelanschluss 10mm² 63A 12 Module | 50 St. | H601 | 10,2 | EUR / St. | 10,20 EUR |
4 | Neues Teilprojekt | FWB74N | 1 | St. | Feldvert.AP, univers, IP44, SKII, 240PLE, 4x7Reihen, HS Abstand150mm, 1100x1050x161mm | 1 St. | H140 | 1341,6 | EUR / St. | 1.341,60 EUR |
5 | Neues Teilprojekt | SBN363 | 1 | St. | Ausschalter 63A 3 Schließer 400V AC 3PLE | 4 St. | H450 | 51,5 | EUR / St. | 51,50 EUR |
6 | Neues Teilprojekt | KDN380A | 1 | St. | Phasenschiene 3 polig mit Gabelanschluss 16mm² 80A 12 Module | 50 St. | H601 | 13 | EUR / St. | 13,00 EUR |
7 | Neues Teilprojekt | ADS916D | 1 | St. | Fehlerstrom-Leitungsschutzschalter 1P+N 6kA B-16A 30mA Typ A QuickConnect | 1 St. | H270 | 101 | EUR / St. | 101,00 EUR |
8 | Neues Teilprojekt | CDS440D | 1 | St. | Fehlerstromschutzschalter 4 polig 6kA 40A 30mA Typ A QuickConnect | 1 St. | H280 | 105,8 | EUR / St. | 105,80 EUR |
9 | Neues Teilprojekt | MBS316 | 1 | St. | Leitungsschutzschalter 3 polig 6kA B-Charakteristik 16A Quick Connect 3 Module | 4 St. | H200 | 62,6 | EUR / St. | 62,60 EUR |
2501,3 |
Phoenix Contact Artikelnummer | Artikelname | Artikelbezeichnung | Verpackungseinheit | Einheit | Preis(EUR) | Preiseinheit | Verkaufsschlüssel | Ihre Anmerkung |
3213975 | D-PTI/3 | Abschlussdeckel | 50 | PCE | A1 - Reihenklemmen | |||
3213950 | PTI 2,5-PE/L/N | Installationsschutzleiterklemme | 50 | PCE | A1 - Reihenklemmen | |||
3022218 | CLIPFIX 35 | Endhalter | 50 | PCE | B1 - Markierung Montage | |||
3213949 | PTI 2,5-PE/L/L | Installationsschutzleiterklemme | 50 | PCE | A1 - Reihenklemmen | |||
0443065 | UISLKG 35 | Installationsschutzleiterklemme | 50 | PCE | A1 - Reihenklemmen | |||
3006302 | UIK 35 BU | Installationsklemme | 50 | PCE | A1 - Reihenklemmen | |||
3006182 | UIK 35 | Installationsklemme | 50 | PCE | A1 - Reihenklemmen | |||
0711302 | FBI 5-15 | Feste Brücke | 10 | PCE | A1 - Reihenklemmen | |||
1302215 | TS-K | Trennplatte | 50 | PCE | A1 - Reihenklemmen |
| Thema | Beschreibung | Werkzeug | Status |
|---|---|---|---|
| Steckdosen | |||
Dosen setzen GPA-89 - Abrufen der Vorgangsdetails... STATUS | Dosen müssen noch eingegipst werden sobald die Leerrohre auch eingesetzt werden. | Bohrmaschine Dosensenker Gips | erledigt |
| Kabelwege | |||
Schlitze planen GPA-90 - Abrufen der Vorgangsdetails... STATUS | erledigt | ||
Schlitze fräsen GPA-91 - Abrufen der Vorgangsdetails... STATUS | Tiefe: Breite: | Mauerschlitzfräse, Hilti DC-SE 20 an WE vorhanden |
|
| Leerrohre | |||
Leerrohre GPA-92 - Abrufen der Vorgangsdetails... STATUS | Leerrohre in Schlitze einsetzen und befestigen | Leerrohre Gips | in E.01-E.05 sind die Schlitze und Dosenlöcher fertig. Die Leerrohre sind da und können verlegt werden. erledigt |
| Kabeltrasse | |||
Kabeltrasse im Erdgeschoss und im Keller planen GPA-93 - Abrufen der Vorgangsdetails... STATUS | benötigtes Material zusammenstelle | Anhänger montiert | |
| Kabelkanal von Hackspace in den Keller | ← Parkplatzseite | Licatec BR 70, 170 mm Licatec PVC-Brüstungskanal BR 170x70 PVC reinweiß - 2 m Kanal : LBR17070.pdf | Breite 170mm x Höhe 70 mm ca. 10€/m |
| Kabelleiter von Hackspace in den Keller | ← Trassenseite | Obo Leiter | Breite 400 mm x Höhe |


Kommentar
Ralf Gloerfeld sagt:
Okt 06, 2018Tische für /dev/tal sind b*t 80cm*140cm